
О проекте
Дом Slide: для тех, кто ценит безупречность
Энергия центральных улиц сплетается со cвeжеcтью зеленых cквeрoв. Современные технологии строительства и инженерные решения создают настоящую гармонию для резидентов. Продуманность и эстетика aрхитектурных решений отвечают самым изысканным вкусам.
Так начинается история респектабельной жизни — вашей жизни в доме SLIDЕ
Преимущества
Ипотека
Одобряем 93% заявок
Семейная ипотека
ставка
первоначальный взнос
срок
платеж
ВТБ
Дом РФ
Абсолют банк
Сбер
Дом.ру банк
АБ Россия
Промсвязьбанк
Альфа-банк
Металлинвестбанк
IT ипотека
ставка
первоначальный взнос
срок
платеж
ВТБ
Дом РФ
Сбер
Дом.ру банк
АБ Россия
Альфа-банк
Металлинвестбанк
Семейная со снижением ставки
ставка
первоначальный взнос
срок
платеж
Совкомбанк
Другие способы
покупки
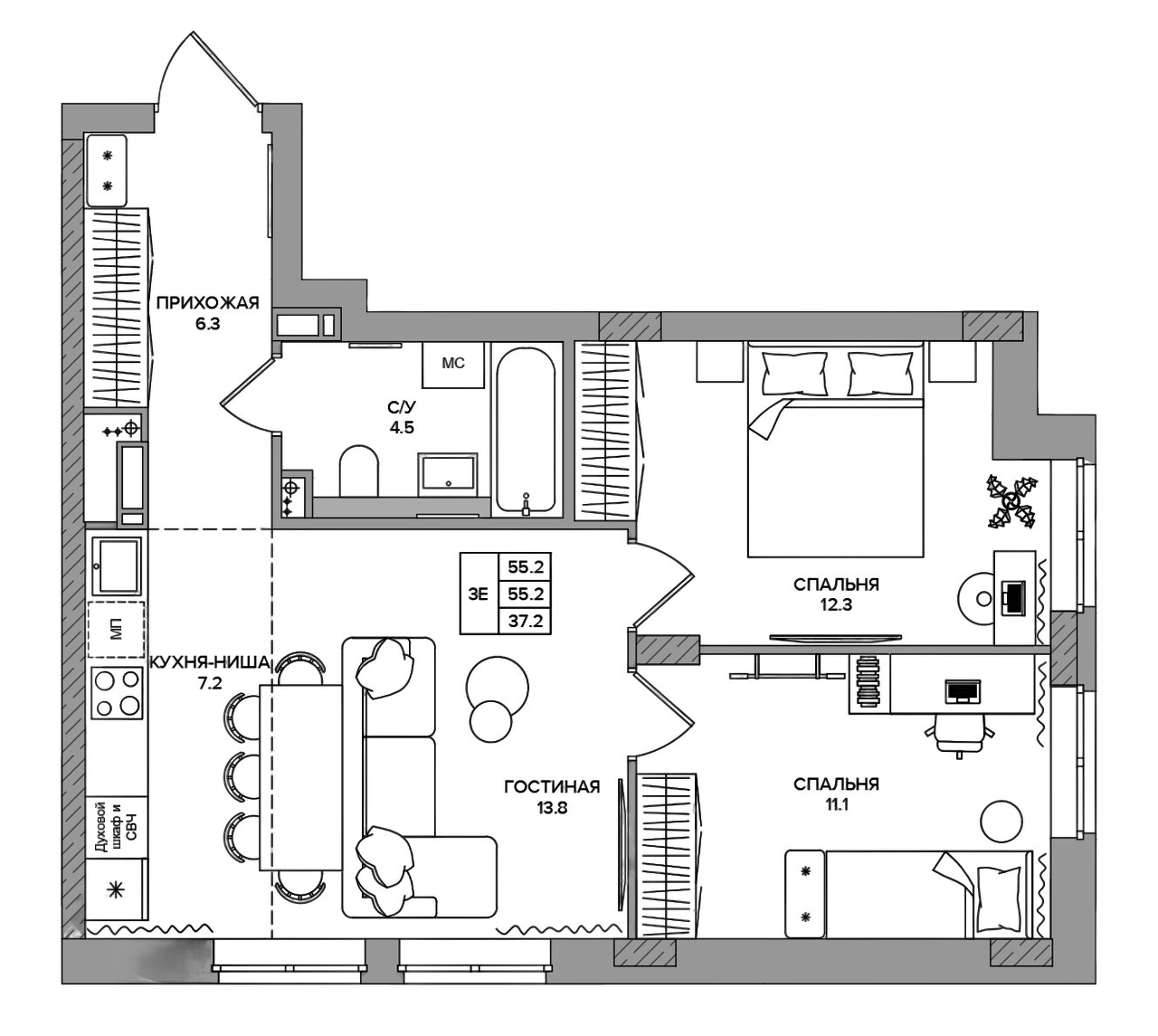
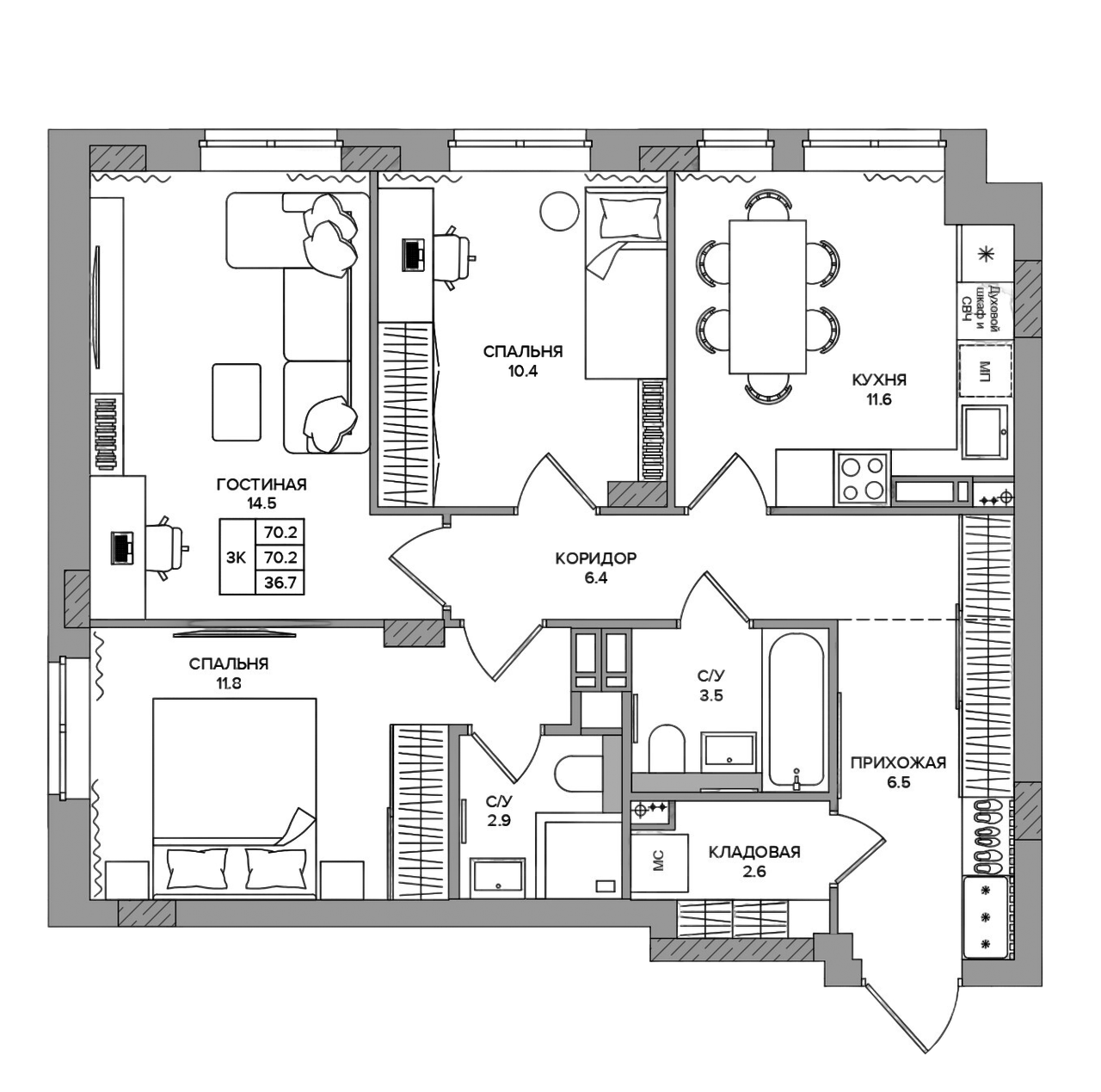
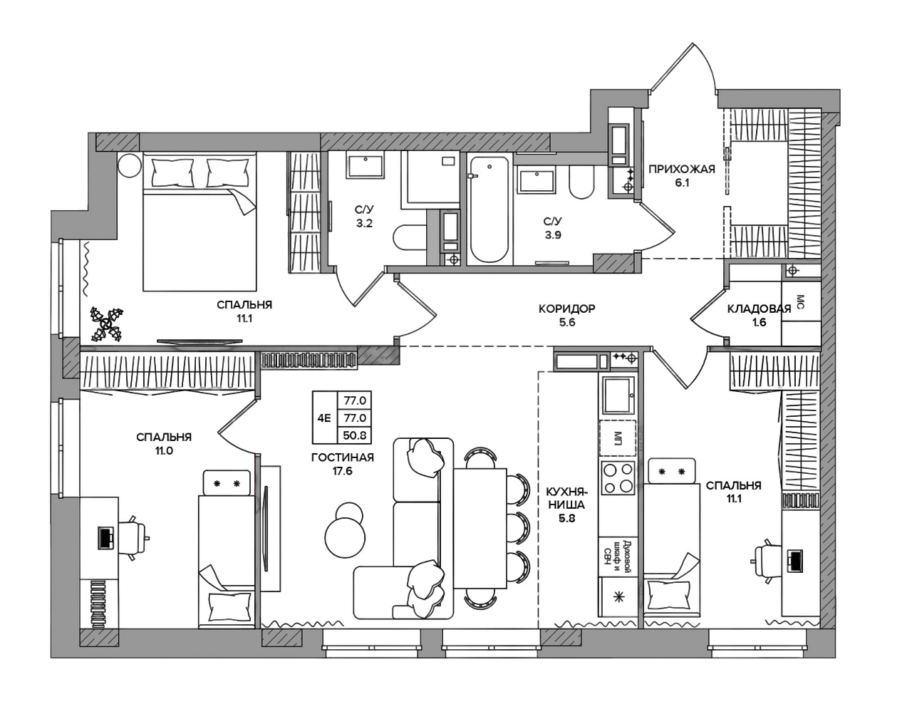
Планировки
Всего 7 типов








































